|
|
|
|
| |
| |
|
|
| |
R200系列高压器具有性能稳定,无噪音、闭合 严密和使用寿命等优点。其内置可调金属活塞克服了轴流式调压器的缺点,特制的阀座能确保阀体不被天然气中的杂质所腐蚀。R200还有如下优点:
◆ 只需简单地更换指挥器,就能改装成高压 放散阀。
◆ 用户可先装内置滤网来有效防止大颗粒杂质进入主阀体。
◆ 指挥器入口的过滤能防止管道中的杂质进入指挥器。
|
|
| |
|
|
|
|
| |
|
|
|
| ◆ 闭合严密 |
| R200设计独特的阀座能够有效防止阀座密封被腐蚀,大大延长了阀体寿命。即使在很低的温度下,R200也能闭合严密。 |
| |
| ◆ 无噪音操作 |
| R200采用专利设计并加装了消音器中。将噪音降低到了最低程度。根椐用户的环境要求。噪声可降低多达40DB(A)。另外,R200的多通道歉技术能够确保调压器几乎无噪音 |
| |
| ◆ 维护成本低 |
| R200独特设计的活塞可避免膜片磨损或破裂,其所气体通道可使气流通过调压时不会对阀座产生冲击,从而确保较长的维修周期。 |
| |
| ◆ O型圈设计 |
| R200采用专利弹性0型圈代替垫圈,从而减少了维修及装配时间。 |
| |
| ◆ 维护简便 |
| R200顶部入口的设计便于用户对调压器内部配件在线检测,缩短维修时间。 |
| |
| ◆ 压力调节精确 |
| R200所配置指挥器具有很宽的出口压力调节范围和很高的高压精度可使出口压力稳定而精确 |
| |
|
|
|
| |
|
◆ 综合数据 |
|
|
|
| 型号 |
R200系列 |
| 压力等级 |
ANSI 150 |
ANSI 300 |
ANSI 600 |
| 进口压力范围(bar) |
3~19 |
3~50 |
100 |
| 出口压力范围(bar) |
1~19 |
1~50 |
1~60 |
| 工作温度(℃) |
-20~60 |
| 环境温度(℃) |
-30~60 |
|
| |
|
◆ 流量系数(Cg值) |
|
|
|
公称直径 |
Cg值 |
英寸 |
毫米 |
R200/R200 M |
R200/R200(S)-M |
2" |
50 |
2000 |
1210 |
3" |
80 |
4000 |
2800 |
4" |
100 |
6760 |
4970 |
|
| |
|
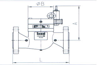
◆ 尺寸(毫米)和重量(千克) |
|
|
|
公称直径 |
ANSI 300 |
ANSI 600 |
英寸 |
毫米 |
A |
B |
L |
重量 |
A |
B |
L |
重量 |
2" |
50 |
290 |
130 |
267 |
35 |
290 |
130 |
292 |
41 |
3" |
80 |
325 |
165 |
318 |
57 |
325 |
165 |
356 |
63 |
4" |
100 |
350 |
195 |
356 |
86 |
350 |
195 |
432 |
106 |
|
| |
|
◆ 材料规格 |
|
|
|
部件 |
材料 |
动密封0型圈 |
FPM |
静密封0型圈 |
NBR |
活塞 |
AISI 31 |
导套 |
AISI 431 |
消音器 |
金属泡沫 |
阀体 |
A216 WCB |
法兰 |
S355J2G3或A216-WCB |
|
|