产品概述
 
     
 

     QOC快开盲板由长颈段、盲板盖、两瓣卡箍以及附件组成。无论立式还是卧式的快开盲板均能快速、方便地被开启和关闭。安全联锁装置保证了快开盲板在不带压的情况下才能开启,并且关上联锁装置后才能升压。

 
     
 
 操作
 
 

  直径10英寸、压力2000PSI下应力分布
 
     
      一个操作工人用普通的工具即可开启和关闭各种尺寸的快开盲板。开启进,打开安全联锁装置后,旋转开启螺栓,松开卡箍后即可拧紧开启螺栓,闭合安全联锁装置即可。
 
     
 
 应用场合
 
       
  压力容器
清管器
化学反应釜

换热器
过滤分离器、过滤器
 人孔 等需要快速开闭的场合

 
       
 
 设计特点
 
 
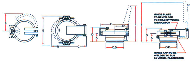
 型号尺寸
 
CLASS150&300 尺寸(英寸) 重量
(磅)
NOM
size
FIG. A B C D E F LPS.
6 1 4 13 8 8 14 11 106
8 1 4 15 9 8 16 17 138
10 2 5 11 15 9 25 26 272
12 2 6 12 16 10 29 30 323
14 2 6 12 16 10 30 30 354
16 2 6 13 17 10 33 32 415
18 2 6 15 19 10 35 35 554
20 2 6 16 20 10 37 38 631
22 2 6 17 21 10 39 39 721
24 2 6 18 22 11 42 42 930
26 2 6 16 24 1/2 11 43 46 1380
28 2 6 17 25 1/2 11 18 48 1486
30 2 6 19 27 12 50 50 1685
 
CLASS400&600 尺寸(英寸) 重量
(磅)
NOM
size
FIG. A B C D E F LPS.
6 1 4 13 8 8 14 11 106
8 1 4 15 9 8 16 17 138
10 2 5 22 15 9 25 26 272
12 2 6 23 16 10 30 30 369
14 2 6 23 16 10 31 31 446
16 2 6 24 19 11 34 35 512
18 2 6 15 20 11 47 37 753
20 2 6 17 21 11 39 39 882
22 2 6 19 23 12 44 42 1163
24 2 6 20 24 12 46 45 1479
26 2 7 18 26 13 49 50 2002
28 2 8 19 28 15 52 54 2134
30 2 8 20 29 1/2 15 60 56 2494
注:PECO可以设计尺寸更大、压力更高的快开盲板。